2022 Design Awards

Thank you to our Jury.

Jerry Larson, Professor Emeritus of Architecture at the University of Cincinnati.

Hsu-Jen Huang, Architecture Professor, Savannah College of Art & Design

April Gray, Clemson University Masters of Architecture graduate and Hilton Head Island architect

Barry Stedman, Associate Professor Emeritus, University of Cincinnati, DAAP

 

PAPER ARCHITECTURE / UNBUILT PROJECT

ENTRIES:

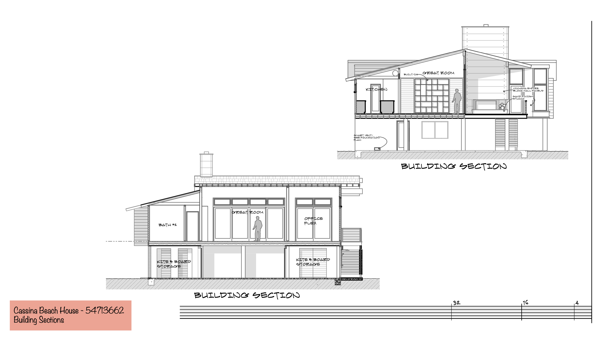
Cassina Beach House

Parker Design Group Architects

Residence 1663

Pearce Scott Architects

Moreland House

Court Atkins Group

Trophy House

Court Atkins Group

MERIT AWARD:

Residence 1663

Pearce Scott Architects

 

SUBSTANTIAL RENOVATION - COMMERCIAL ARCHITECTURE

ENTRIES:

The Boathouse - Hilton Head

Parker Design Group Architects

May River Row Facade Renovation

Court Atkins Group

The Rate

Pearce Scott Architects

The Smokehouse

Parker Design Group Architects

MERIT AWARD:

The Rate

Pearce Scott Architects

 

HONOR AWARD:

The Smokehouse

Parker Design Group Architects

 

SUBSTANTIAL RENOVATION - RESIDENTIAL ARCHITECTURE

ENTRIES:

Residence 1723

Pearce Scott Architects

Rulli Residence Renovation

Parker Design Group Architects

The “Former” Kennel

Court Atkins Group

Residence 1873

Pearce Scott Architects

MERIT AWARD:

The “Former” Kennel

Court Atkins Group

 

HONOR AWARD:

Residence 1723

Pearce Scott Architects

 

DETAIL / ACCESSORY STRUCTURE

ENTRIES:

Kiawah River Pavilion

Pearce Scott Architects

Omni Resorts Hilton Head Breeze Beach Bar

Parker Design Group Architects

Turtle Lane Club Gatehouse & Motorway Entry

Neil Gordon, Architect

 

MERIT AWARD:

Omni Resorts Hilton Head Breeze Beach Bar

Parker Design Group Architects

 

HONOR AWARD:

Kiawah River Pavilion

Pearce Scott Architects

 

NEW CONSTRUCTION COMMERCIAL ARCHITECTURE

ENTRIES:

Bluffton Design Group

Court Atkins Group

Hilton Head Christian Academy

Court Atkins Group

A New Campus for the Bridges Preparatory School

Hord Coplan Macht

Island Recreation Center Expansion and Enhancement

Hord Coplan Macht

Burnt Church Distillery

Pearce Scott Architects

Wheelz Bike Shop

Parker Design Group Architects

Church of the Cross Chapel

Parker Design Group Architects

 
 

MERIT AWARD:

Hilton Head Christian Academy

Court Atkins Group

 

HONOR AWARD:

Wheelz Bike Shop

Parker Design Group Architects

 

NEW CONSTRUCTION RESIDENTIAL ARCHITECTURE

ENTRIES:

Agrarian Cottage

Court Atkins Group

Oceanfront Home

Parker Design Group Architects

Residence 1408

Pearce Scott Architects

O’Donnell Residence

Parker Design Group Architects

Goose Pond House

Court Atkins Group

Residence 2069

Pearce Scott Architects

Residence 2049

Pearce Scott Architects

 

MERIT AWARD:

Goose Pond House

Court Atkins Group

 

MERIT AWARD:

Residence 2049

Pearce Scott Architects

 

MERIT AWARD:

Residence 2069

Pearce Scott Architects

 

HONOR AWARD:

Oceanfront Home

Parker Design Group Architects