2016 Design Awards | Un-built Projects

Merit Award winner

artist retreat

William Court / Court Atkins Architects
 

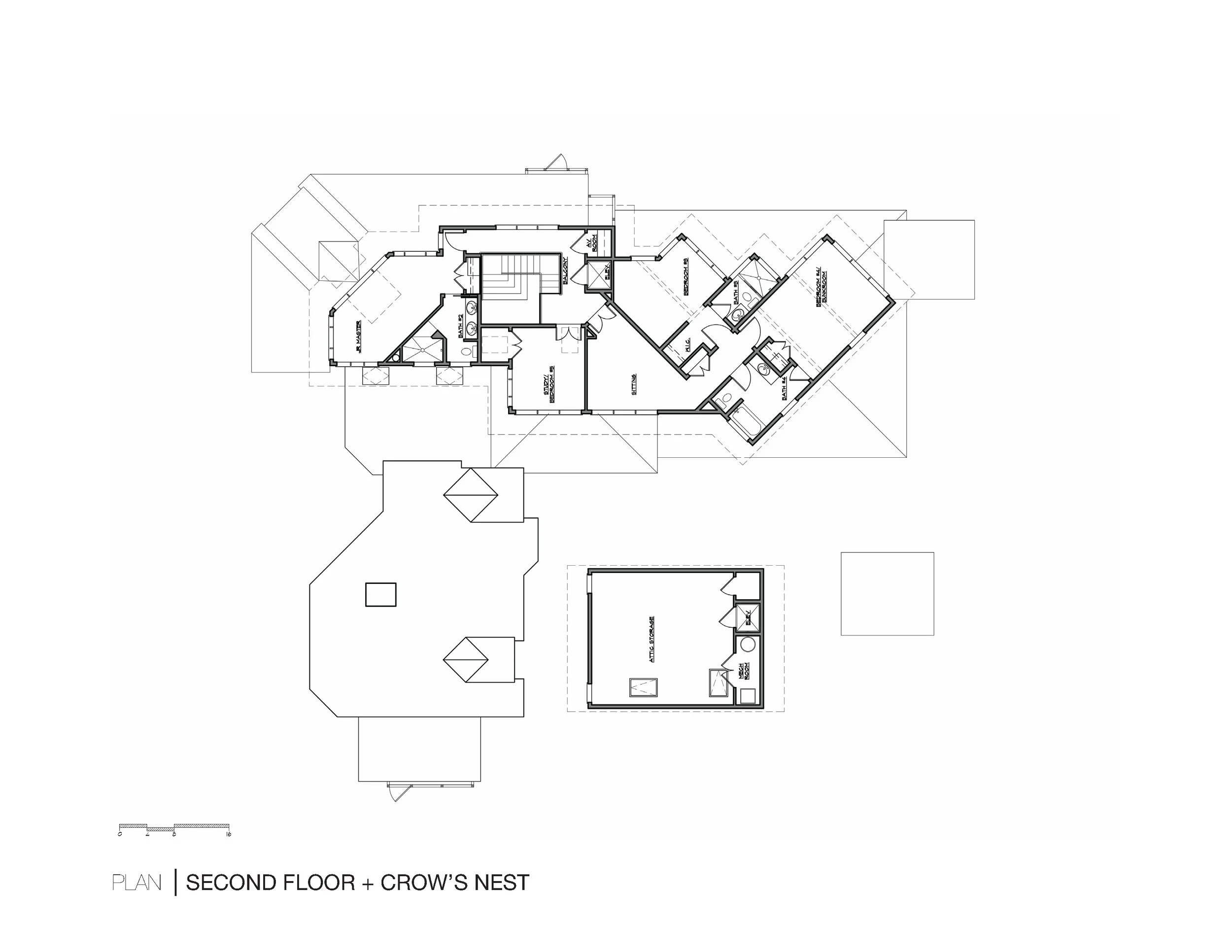
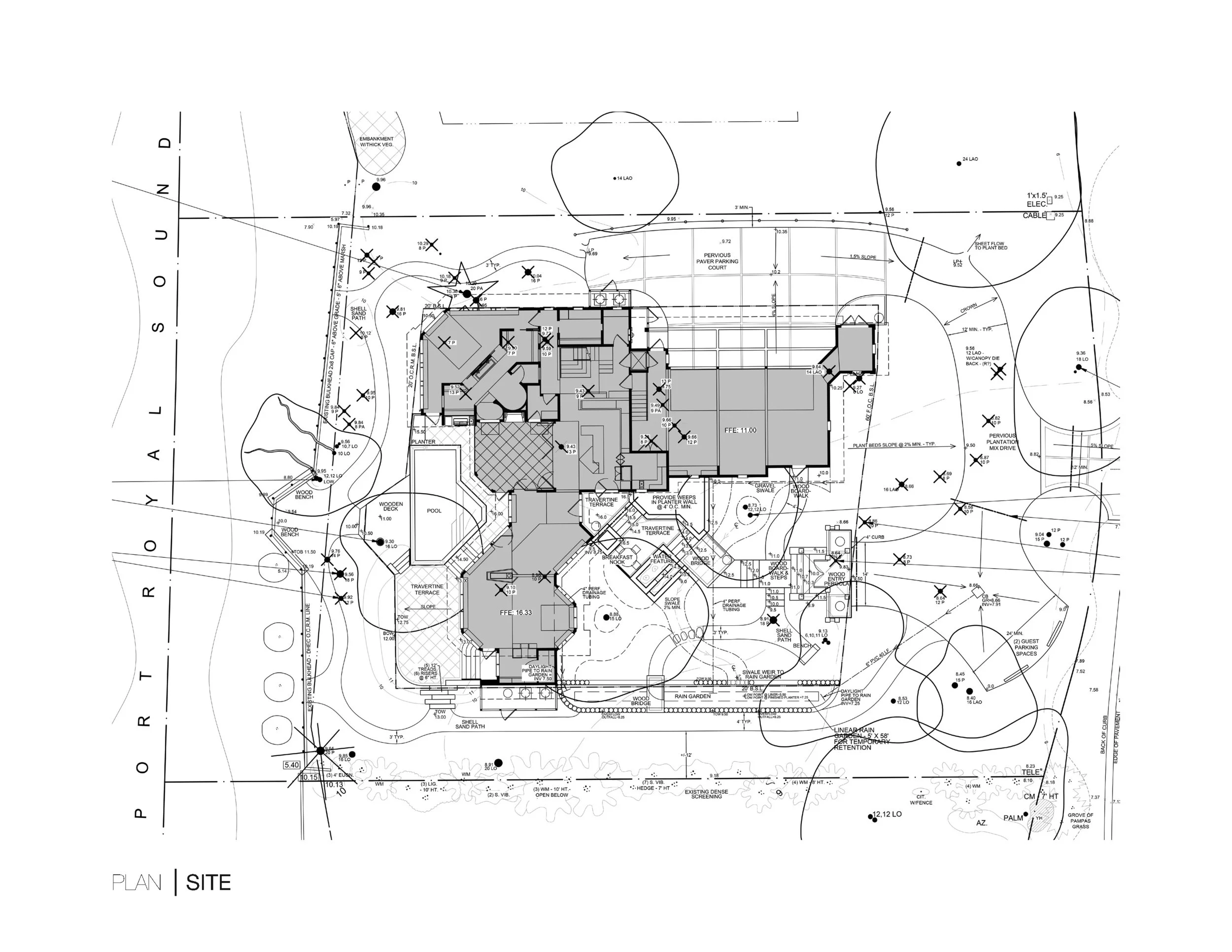
PRIVATE RESIDENCE

Robert S. Johnson / Johnson & Associates/Architects, Inc.