2016 Design Awards
Residential, Greater than 5,000 sq. ft.

Honor Award Winner

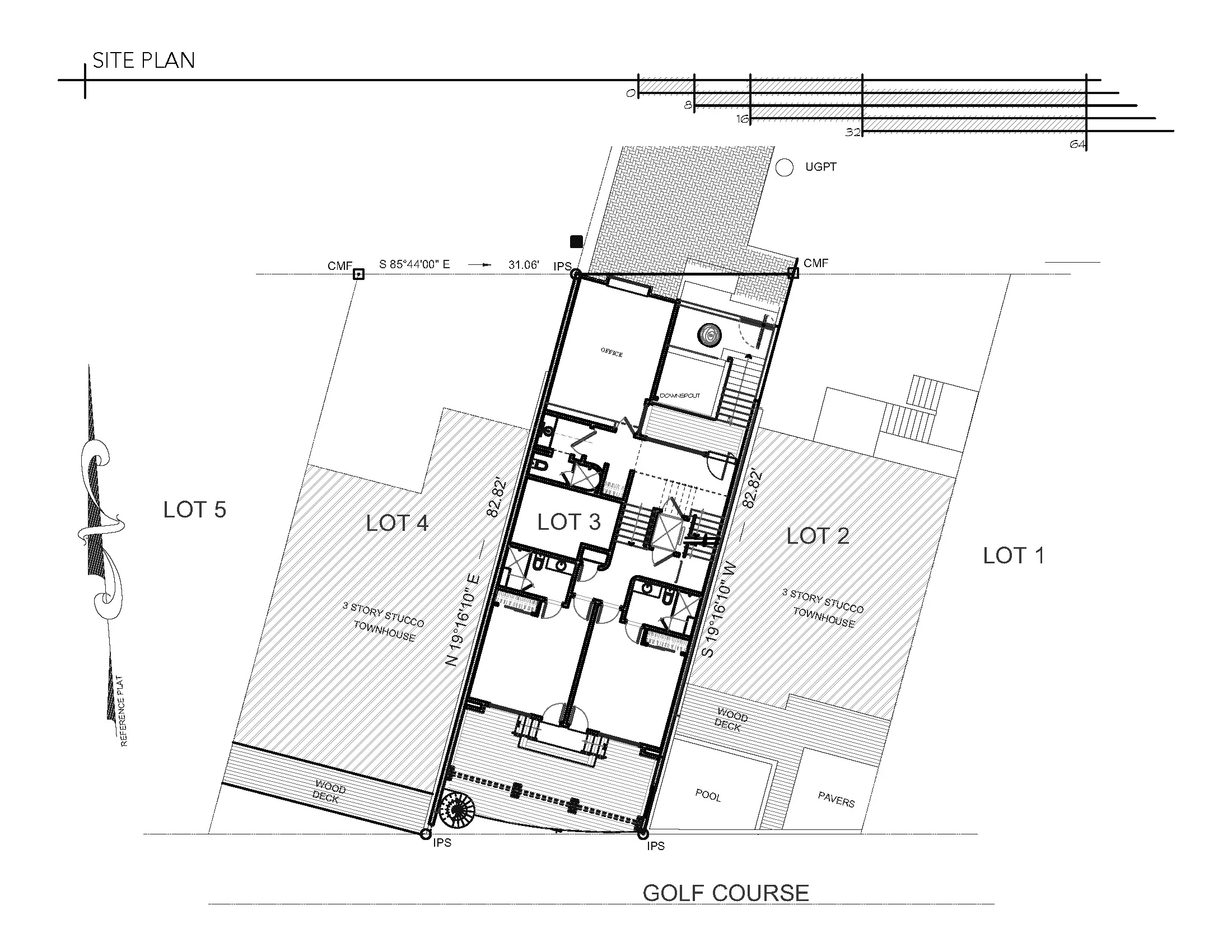
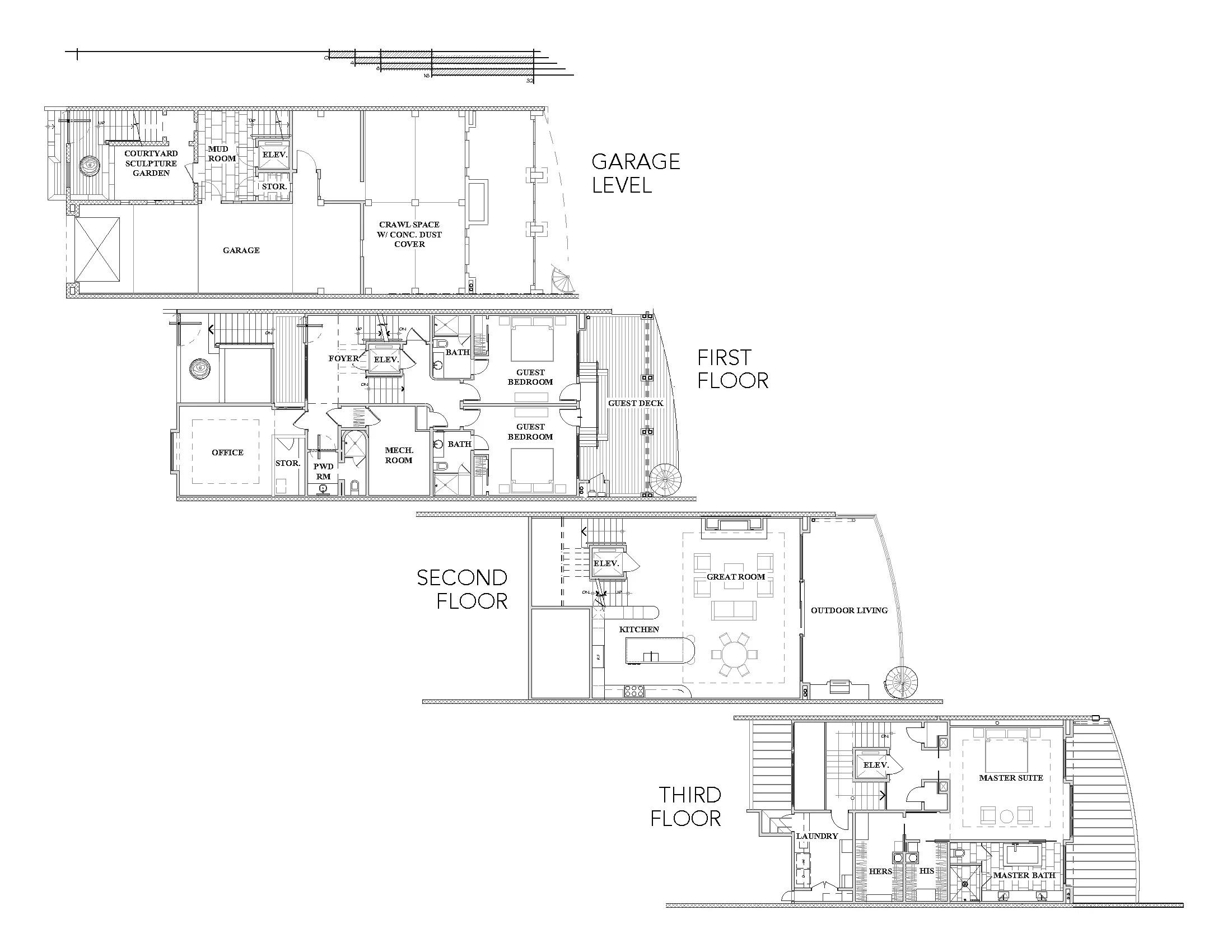
mizzenmast townhouse

Tom Parker / Parker Design Group
 

PRIVATE RESIDENCE

William Court / Court Atkins Architects
 

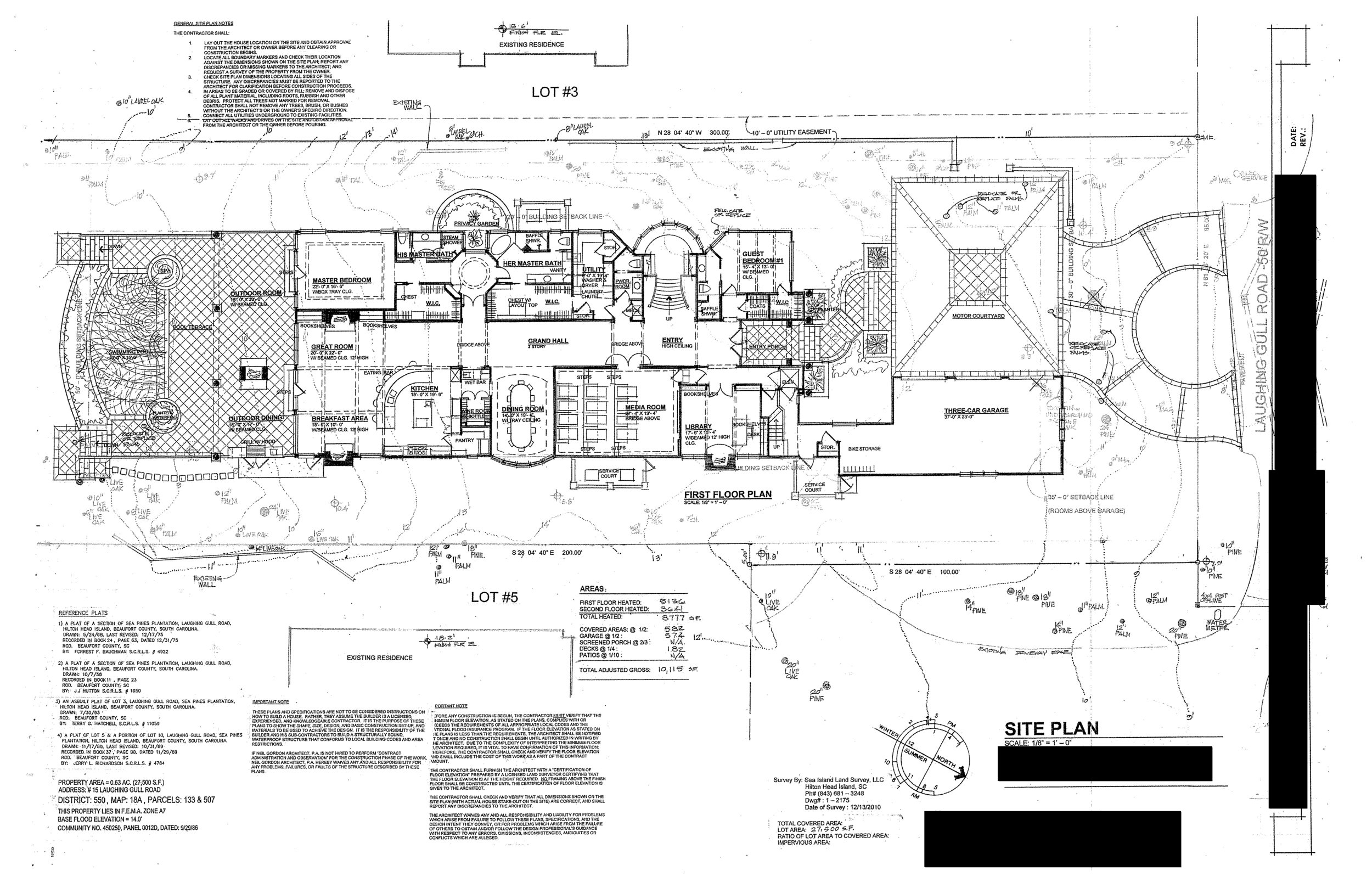
PRIVATE RESIDENCE

Neil Gordon / Neil Gordon Architect
 

PRIVATE RESIDENCE

John Pittman, III, AIA, NCARB / John Pittman, III, AIA, NCARB Architects
 

PRIVATE RESIDENCE

Robert S. Johnson / Johnson & Associates/Architects, Inc.